
Een inkijkje in de bouw van onze camper

Ophalen van de Fiat, bij de dealer zijn de 2 dakramen en de luifel gemonteerd en zijn de 2 cabine stoelen draaibaar gemaakt.
Een bewuste keuze voor een buscamper om onze route's niet te laten beperken door de omvang waardoor bijvoorbeeld diverse balcony roads of de vele smalle wegen in het Verenigd koninkrijk niet of beperkt toegankelijk zouden zijn

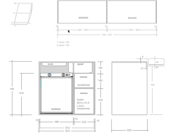
Enkele bouwtekeningen van kastjes en keukenblok

Het bouwen van de bovenkastjes

Bouw en installatie keukenblok





Deelbescherming, welke is uit te breiden met rechtse bescherming en frontbescherming
beneden;
Volledige bescherming en eventuele extra slaapplaatsen